宮崎市佐土原町下田島 中古住宅
こだわりポイント満載の宮崎市佐土原町下田島 中古住宅。宮崎市立広瀬小学校が通学範囲内、学校まで徒歩32分。もとからエアコンが付いていますので、快適な室温にすることができます。宮崎市にある日豊本線佐土原駅周辺での住まい選びなら、当社にお任せください。当社で住まい探しをしていただければ、きっと魅力的な一戸建てに出会う事ができるでしょう。
更地引渡しも相談可能。
ローンシミュレーションこの物件を購入した場合の、月々の支払い価格の一例です。借り入れを保証するものではございません。
- 返済期間
-
- 金利
-
- ボーナス時の増額(1回分)
-
- 借入金額:
-
- 頭金:
-

- 毎月の返済額:
(※元利均等方式 金利5.00%まで ※返済年数5~50年まで入力できます)
(※ボーナスは年2回で計算しています。1000万円まで入力できます)
(※物件購入時、その他諸費用が発生する場合がございます)
担当者のコメント 株式会社OONO 大野 裕己

- 区域内の小学校は宮崎市立広瀬小学校で徒歩32分です。フローリングなので、どんな世代の方にもなじみます。こちらは中古の戸建て物件です。玄関ポーチがございます。より快適な暮らしができるよう、当社はお客様のご希望に合わせた不動産情報をご提供いたします。更地引渡しも相談可能。ご要望やご不明な点などございましたら、お気軽に当社へお問い合わせ下さい。
ポイント・特徴
物件概要
【中古一戸建】 物件番号:99184941 情報更新日:2026年03月05日 次回更新予定日:2026年03月19日| 所在地 | 宮崎県宮崎市佐土原町下田島 | ||
|---|---|---|---|
| 交通 | |||
| 間取り/詳細 |
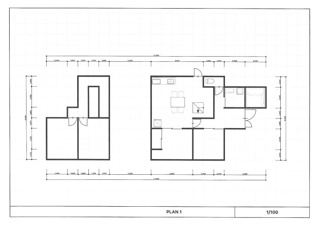
4DK/ 和室 6.0帖/和室 6.0帖/洋室 6.0帖/洋室 6.0帖/DK 7.5帖 |
建物面積(坪数) | 83.63㎡(25.29坪) |
| 価格 | 1,200万円 | ||
| 駐車場/月額料金 | 有/- | ||
| 土地の敷金/保証金 | -/- | 借地料/借地期間 | -/- |
| 土地権利 | 所有権 | 土地面積(坪数) | 216.54㎡(65.50坪) |
| 傾斜地部分面積 | - | 路地状敷地 | - |
| 私道負担面積/セットバック | -/無 | 高圧線下面積 | - |
| 地目/地勢 | 宅地/- | 接道状況 | 二方(東 公道 6.0m)(西 公道 4.0m) |
| 建ぺい率/容積率 | 60%/200% | 用途地域 | 第一種低層住居専用 |
| 都市計画 | 市街化区域 | 種別/構造 | 中古一戸建/木造 |
| 階建 | 2階建 | 築年月(築年数) | 1993年 7月 (築32年) |
| 総区画数/販売区画数 | -/- | 向き | - |
| 現況 | 居住中 | その他の法令上の制限 | 景観法/航空法 |
| 取引態様/引渡時期 | 専任媒介/相談 | 建築確認番号 | - |
| 物件番号 | 99184941 | 取引条件の有効期限 | 2026年03月19日 |
| 設備条件 |
|
||
| 備考 | 日豊本線佐土原駅周辺への引っ越しをお考えなら「宮崎市佐土原町下田島 中古住宅」。小学校が十分通学できる範囲にあります。宮崎市立広瀬小学校が徒歩32分です。こちらは中古の戸建て物件です。宮崎市についてお問い合わせいただければ、地域情報に詳しい当社スタッフが対応いたします。更地引渡しも相談可能。もちろん不動産についてもご連絡くださいませ。 | ||
| 取扱会社 |
|
||
※地図上に表示される物件の位置は付近住所に所在することを表すものであり、実際の物件所在地とは異なる場合がございます。














